全校師生和廣大校友:
校園道路和樓宇的命名,是校園文化建設的重要內容。為進一步加強校園總體規劃建設與管理,使校園文化建設與校園總體規劃緊密結合,彰顯學校百年文化底蘊,共同挖掘學校優秀的精神品質與豐富的人文內涵,發揮環境育人功能,增強凝聚力,構筑師生共有的精神家園,經黨委會研究決定,現面向全校師生、員工、廣大校友征集校園道路和樓宇命名,現將有關事宜通知如下:
一、征集內容
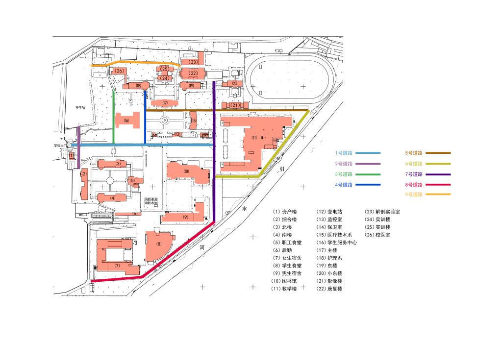
詳見校園示意圖所標示的9條主要道路和19個樓宇(見附件1)
二、參加對象
全校師生員工、歷屆校友
三、道路命名的基本原則
(一)充分展現校園文化和教育功能:命名要體現學校人文精神、辦學理念和核心價值觀,充分體現醫學院校特色。各系部、部門獨立樓宇名稱應融合并體現本系部、部門辦學歷程、辦學理念等內涵,彰顯文化環境育人的教育功能。
(二)體現系統性、關聯性和整體性:命名要有主線,系統考慮,樓宇名稱要兼顧功能、文化為一體。遵循層次化、序列化,科學、合理構建名稱結構體系,體現各類命名的整體性。充分考慮區分工作學習區、生活區、休閑娛樂區等的分類因素。例如樓宇可命名為“××樓,××齋,××廳”等等。
(三)規范性:應用漢語命名,符合國家法律規范,符合社會公德,言簡意賅、寓意深刻;每個命名由3—5個漢字組成,如“致遠路”“博文樓”;應征者應對整體設計思路和每個命名的基本理由作簡要說明。
四、時間安排
(一)方案征集階段(11月30日—12月10日)
1、學校將需要命名道路樓宇通過校園網、官方微信等渠道向全校師生員工和廣大校友進行公開發布。
2、廣大師生員工和校友提交作品。
(二)方案評審階段(12月10日—12月17日)
1、黨委辦公室將征集上來的全部方案匯總整理,組織專家進行評議和初選。
2、召開不同層面的座談會廣泛征求意見。
3、根據廣大師生的意見對初選方案進行修改與完善,提出備選方案,并提交學校黨委會研究。
(三)方案確定階段(12月20日前)。
學校確定命名方案,公布命名結果。
五、要求
1、校園道路樓宇命名是全體師生員工統一思想、凝心聚力的過程。各支部、各部門要高度重視,組織支部成員積極參加,每個支部至少報2套以上建議方案。
2、具有獨立樓宇的系部、部門,要積極組織內部員工研討,提交系部、部門意見建議,(在附件2道路樓宇命名征集表注明是系部、部門意見),學校會充分考慮,整體性與特色兼顧。
3、職工提交以支部為單位,學生以班級為單位,校友可直接發送郵箱,均填寫附件2打包發送。電子版發送至郵箱(yzdwbgs@tj.gov.cn),文件名稱統一以“道路樓宇命名征集+支部(班級或校友單位)”進行標注。
六、獎勵
學校將對入圍方案及最終確定并使用的方案頒發證書和獎品。
附件1:
道路樓宇命名征集表
附件2:
校園道路示意圖
黨委辦公室
2020年11月29日
附件1:
道路樓宇命名征集表
姓名 |
|
單位(部門/班級) |
|
聯系電話 |
|
身份 |
職工/學生/校友 |
整體設計思路: |
序號 |
建議名稱 |
釋義 |
1號路 |
|
|
2號路 |
|
|
3號路 |
|
|
4號路 |
|
|
5號路 |
|
|
6號路 |
|
|
7號路 |
|
|
8號路 |
|
|
9號路 |
|
|
主樓 |
|
|
東樓 |
|
|
西樓(護理) |
|
|
南樓 |
|
|
北樓 |
|
|
小東樓 |
|
|
醫療技術樓 |
|
|
學生服務中心(在建) |
|
|
教學樓 |
|
|
圖書館 |
|
|
職工食堂 |
|
|
學生食堂 |
|
|
男生宿舍 |
|
|
女生宿舍 |
|
|
后勤小院 |
|
|
康復樓 |
|
|
影像樓 |
|
|
…綜合樓(招辦、財務等) |
|
|
校醫院 |
|
|
|
|
|
注釋:1.共有9條道路進行命名,必須填寫完整
2.學校樓宇共有26座樓宇,其中19座樓宇命名征集,上交方案中命名的樓宇不少于10個。
3.同一條道路、樓宇都可以有備選方案。
